新聞動態
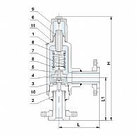
您的位置:首頁 >> 新聞動態 >> 安全泄壓閥的基本工作原理安全泄壓閥在消防給水系統運行過程中,主管道水流方向自左向右,一路控制水進入導閥控制室,當水的壓力小于設定泄壓值時,導閥彈簧的推力大于水的壓力,導閥閥瓣處于關閉狀態。另一路控制水經節流針形閥進入主閥上腔后產生一個靜壓,上腔的壓強和生流道內的壓強相等。由于主閥閥瓣上平面大于下平面,所以上腔對閽瓣的壓力大于主流道內水對問瓣的推方,使主閥處于關閉狀態。

如果主管道水流壓力升高并超過安全泄壓閥設定的泄壓值,經控制管進人導管控制室的水流壓力增加,水的壓力大于彈簧推力 此時導閥被打開,主閥上淀開始泄壓。安全泄壓閥由于受節流閥節制,補水不足,造成主閥上腔壓力減小,主閥同瓣下髓冰。流推力大手上腔壓力,閥瓣上升,主閥打開迅速泄壓。由于上述過程是在瞬間完成的,所以室內消防給水系統在發生超壓時,不會造成危害。